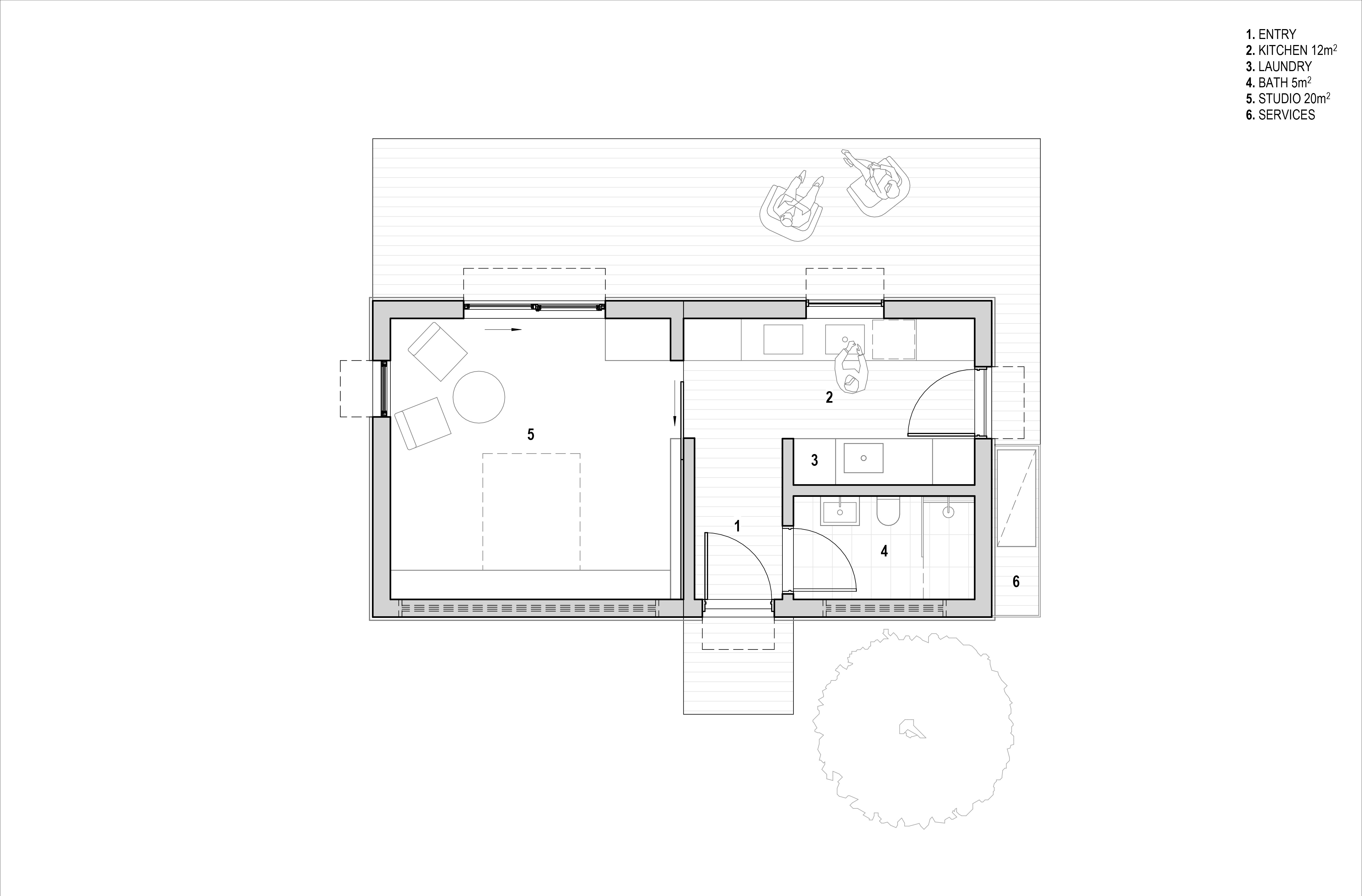
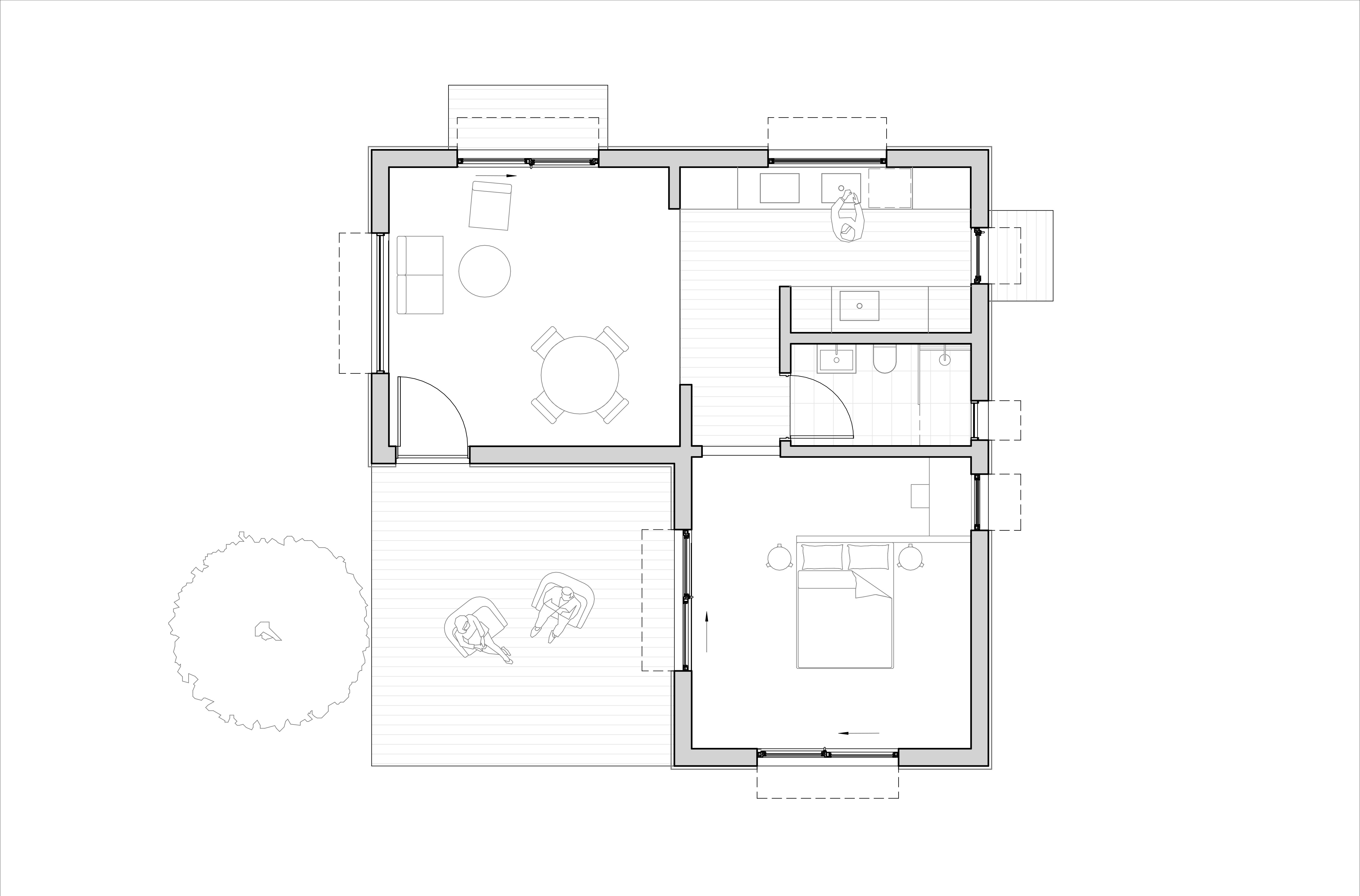
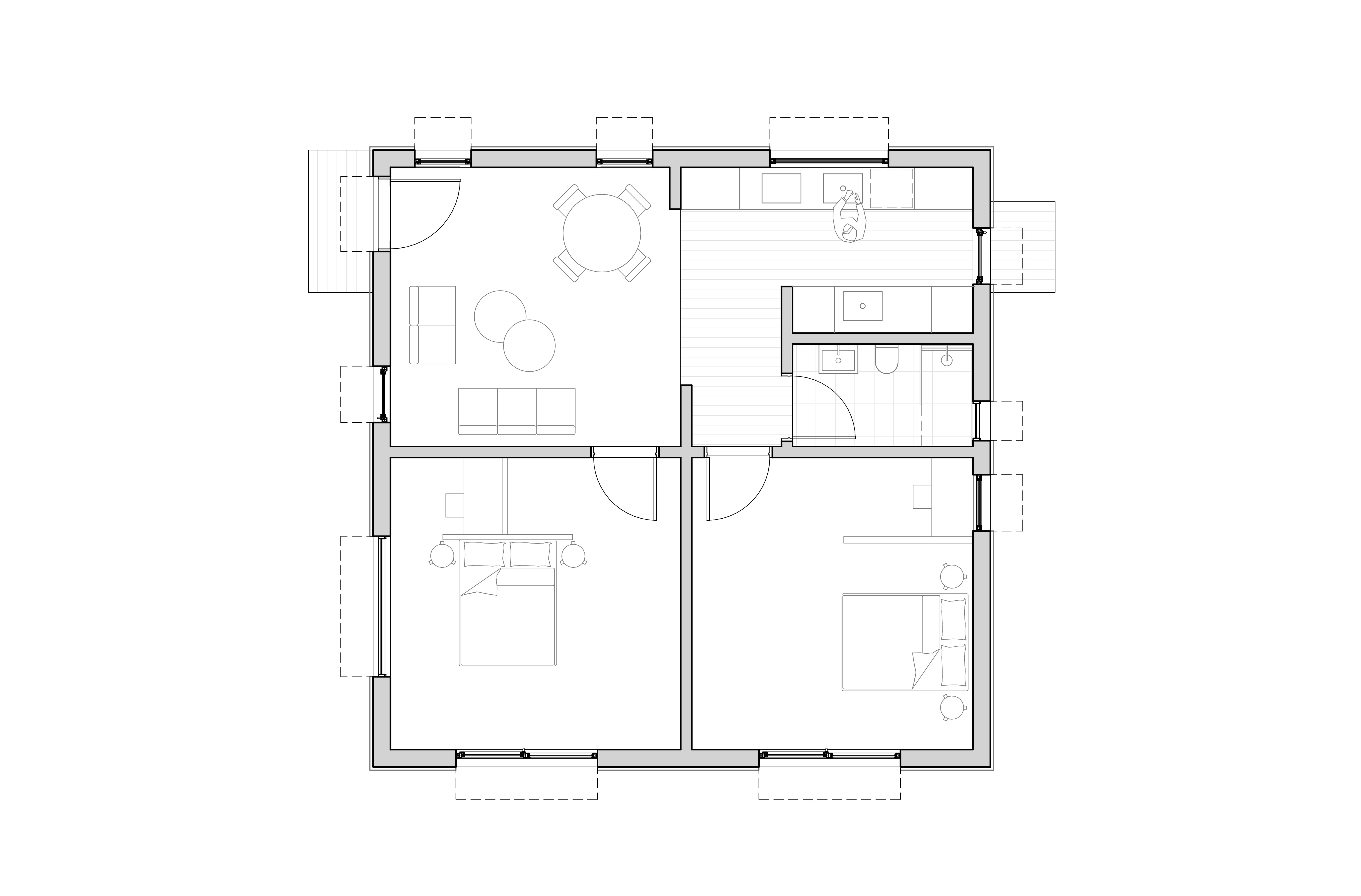
Lock-up Stage
Weathertight shell ready for your own interior fit-out
- Complete structural envelope
- Triple-glazed windows & doors installed
- External cladding and roofing
- Heat recovery ventilation system
- Electrical and plumbing rough-in
- Waterproofing complete





